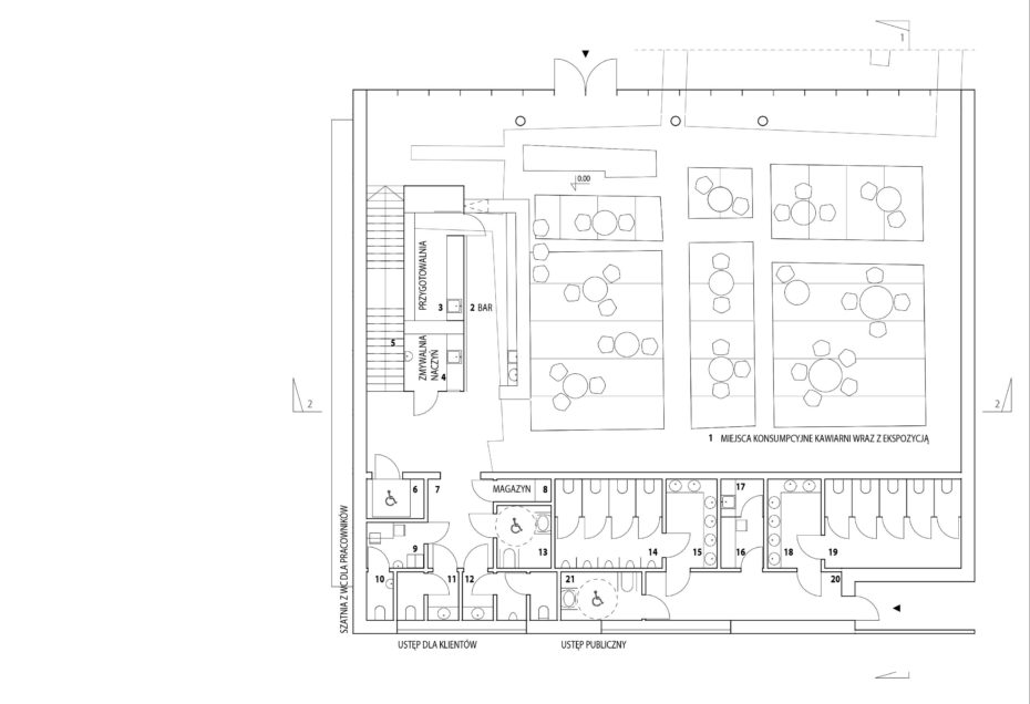
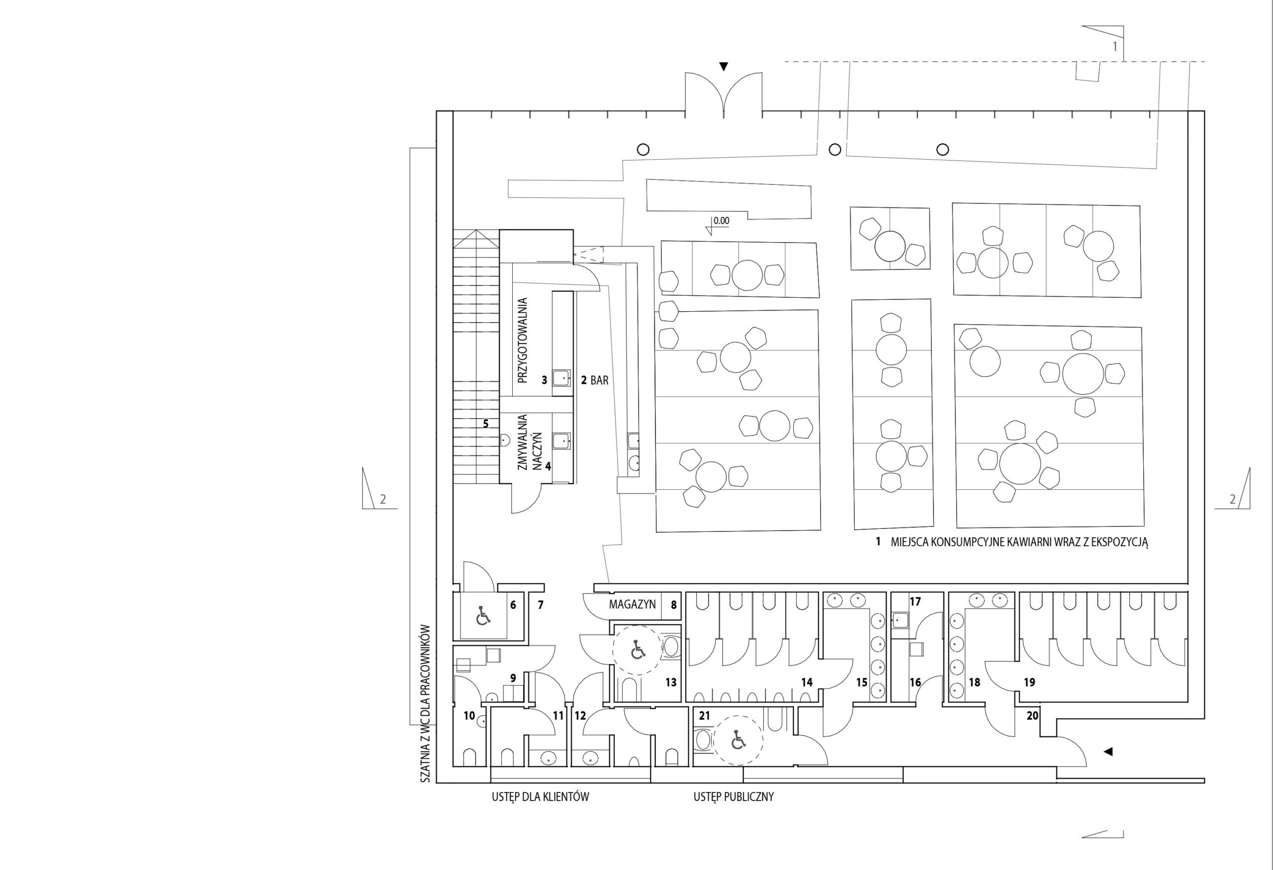
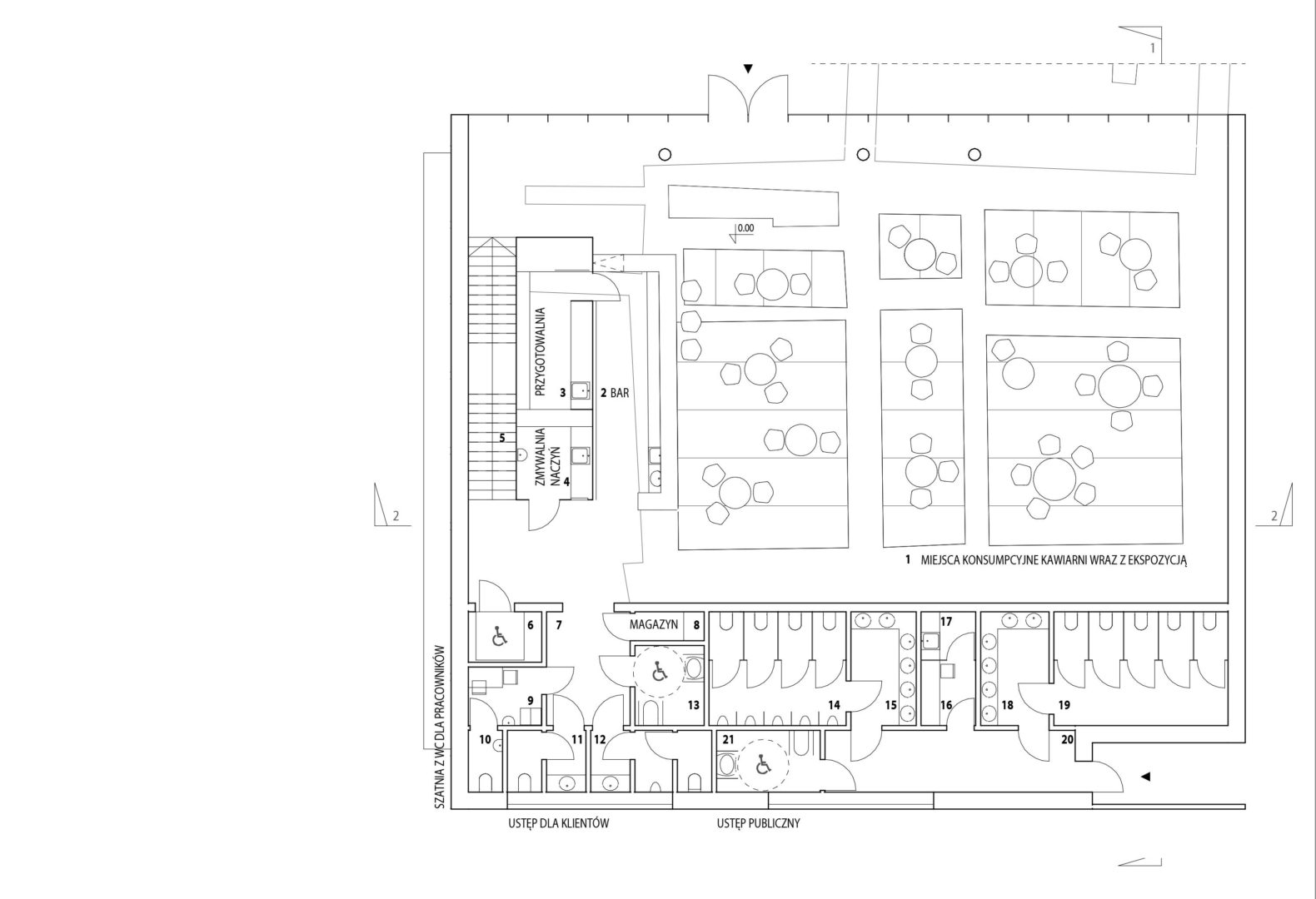
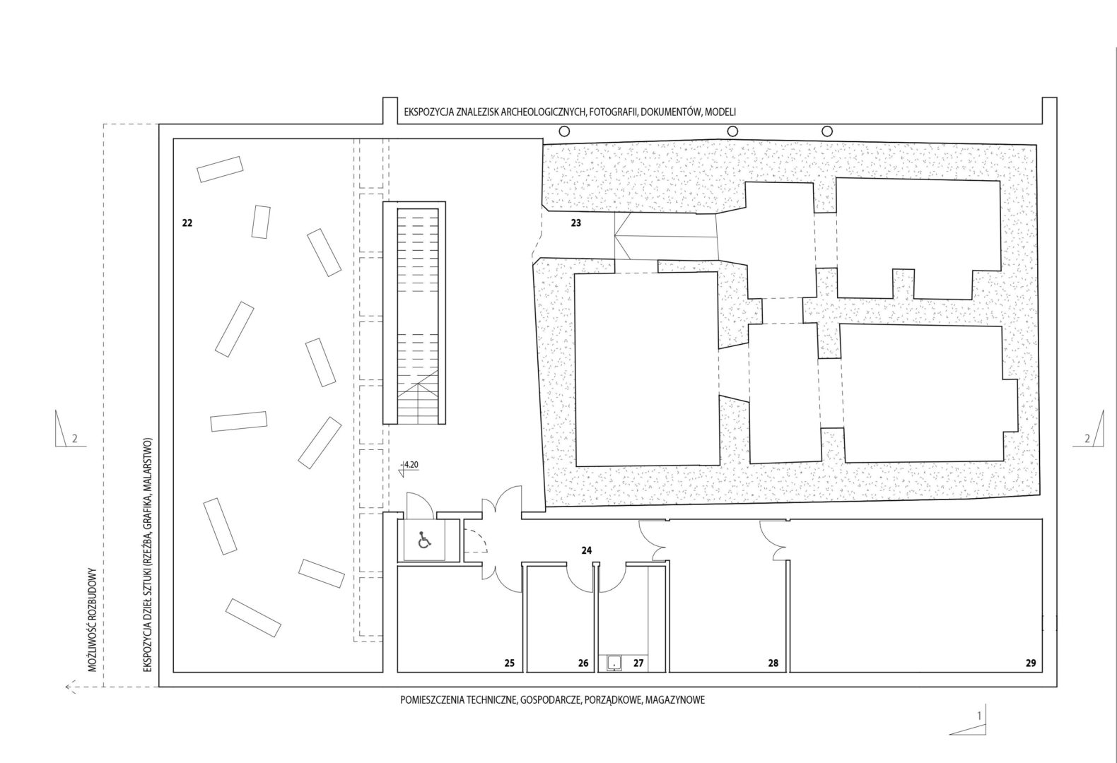
Stary Rynek / 2015