Ośrodek Sportowy / 2017
Kontekst
Rybnicki zalew jest jedną z ikon miasta. W pogodne dni ścieżka rowerowa biegnąca jego brzegiem wygląda jak ulica w Pekinie przed trzydziestoma laty. Najbardziej wytrwali rowerzyści docierają nią do Rud, a nawet dalej. Ci mniej zdeterminowani kończą wyprawę na terenie wybudowanego przed laty przez Elektrownię kompleksu żeglarsko – hotelowego w Sodołach. Niegdyś było to oczko w głowie zarządu elektrowni, ostatnimi czasy jednak ośrodek zaczął wyraźnie podupadać. Wimerowskie baraki mimo sporych nakładów poniesionych na remonty nie przystają do obecnych standardów. Zniknęło molo i małe punkty gastronomiczne. Restauracja serwująca dość dobre jedzenie poza sezonem nie jest w stanie przyciągnąć klientów do anachronicznego wnętrza. Przyszłość jednego z najważniejszych dla Rybniczan miejsc wypoczynku stanęła pod znakiem zapytania.
Na szczęście dla nas wszystkich sytuacja ma się radykalnie zmienić. Po latach poszukiwań znalazł się prywatny przedsiębiorca, który postanowił zainwestować w ośrodek. Od nowego roku stał się formalnie właścicielem terenu, a od wiosny rozpocznie na ternie ośrodka intensywne prace modernizacyjne.
Nowy właściciel nie ma zamiaru zmieniać ogólnodostępnego charakteru ośrodka. Chce natomiast stworzyć ciekawą, całoroczną ofertę generującą środki na utrzymanie kompleksu i jego dalszą rozbudowę.
masterplan
Początkiem prac nad projektem rewitalizacji terenu było stworzenie „master planu” zawierającego wytyczne programowo – przestrzenne dla wieloletnich prac modernizacyjnych. Teren podzielony został na trzy strefy.
„Strefa nadbrzeża” ma zostać kompleksowo zmodernizowana. Odbudowany zostanie pomost dla żeglarzy i spacerowiczów. Dwa nowe pomosty przeznaczone będą dla pływającej kawiarni, windsurferów i do obsługi toru wakeboardowego. Poza funkcjami związanymi ze sportami wodnymi strefa nadbrzeża służyć ma głównie spacerom i wypoczynkowi.
Nieco dalej od nadbrzeża w „strefie aktywności” znajdą swoje miejsce liczne atrakcje. Punktem centralnym ma być tor dla rolkarzy, który w okresie zimowym zamieniać się będzie w sztucznie naśnieżany, oświetlony tor dla narciarstwa biegowego. Znajdą tu też swoje miejsce place zabaw, boiska, poletko do minigolfa, stoły do pingponga, pola do gry w bule itp. Płyta na której organizowane są festyny, początkowo przekryta namiotem docelowo ma być zadaszona, by na koniec w okresie zimowym posłużyć jako lodowisko. W celu uatrakcyjnienia ośrodka w okresie zimowym tor do wakeboardu montowany będzie na lądzie i wykorzystywany do skiboardingu.
W „strefie wjazdu” od strony ulicy Rudzkiej rozbudowane zostaną parkingi, a jeden z obiektów nadających się do adaptacji zostanie zamieniony w budynek mieszczący szatnie centralne, zespoły sanitariatów, punkt informacji, wypożyczalnię sprzętu i kasy.
Większość ogrzewanych prądem, nie nadających się do modernizacji baraków zostanie sukcesywnie wyburzona i zastąpiona nową, lepiej zlokalizowaną i nowoczesną kubaturą. Te zmiany przeprowadzone zostaną tak, by nie zakłócić ciągłości funkcjonowania ośrodka.
Pierwszy obiekt
Pierwszym obiektem, którego budowa planowana jest na rok 2014 jest nowa restauracja. Budynek został usytuowany tuż nad wodą, by w pełni wykorzystać walory miejsca. Z sal na piętrze, przez w pełni przeszklone ściany rozciągać się będzie rozległy widok na zalew. Pomiędzy salą główną, a salkami gabinetowymi zaprojektowano przestronny taras. Architektura operująca oszczędną formą, poprzez zastosowanie drewna w postaci okładzin i dźwigarów konstrukcyjnych z klejonki, posiada widoczne konotacje szkutnicze. Przy przylegającym do restauracji pomoście cumować ma pływająca kawiarenka. Restauracja stanowiąca jeden z zasadniczych elementów ośrodka w pełni sezonu obsługiwać ma również kilka punktów gastronomicznych rozrzuconych po całym terenie. Do czasu zakończenia tej części inwestycji planuje się zachowanie istniejącego punktu gastronomicznego. Następnie barak zostanie wyburzony, aby zwolnić miejsce pod budowę hotelu. Pokoje hotelowe podobnie jak sale restauracyjne zwrócone mają być w kierunku wody.
Jednym z zasadniczych problemów dotychczasowego funkcjonowania ośrodka są wysokie koszty utrzymania wynikające w dużym stopniu z kosztów ogrzewania grzejnikami elektrycznymi. Rozwiązania przyjęte w nowo projektowanych obiektach oparte są na najnowocześniejszych energooszczędnych technologiach wykorzystujących między innymi zalew jako dolne źródło dla pomp ciepła.
opis techniczny
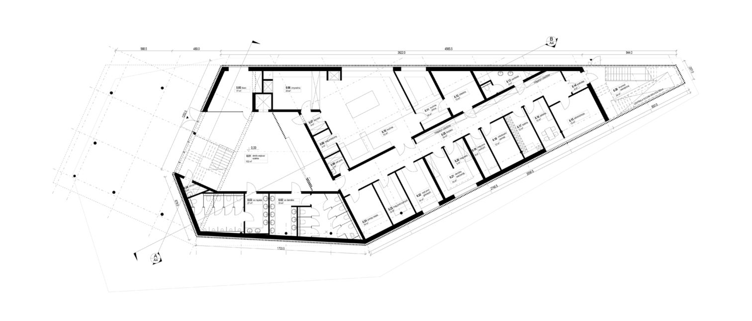
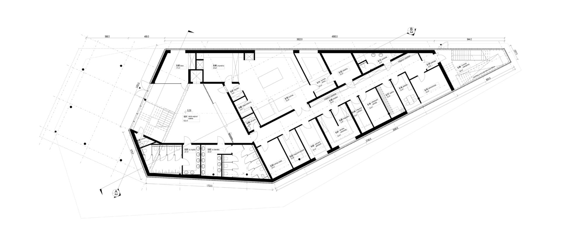
Budynek o rzucie w kształcie wieloboku. Budynek dwukondygnacyjny (parter i piętro) o wysokości 9,30m od poziomu terenu. Dach płaski. W części wejścia głównego do budynku kondygnacja piętra nadwieszona nad parterem, wsparta na słupach stalowych o zróżnicowanym nachyleniu. Na elewacji od strony południowo-wschodniej i południowo-zachodniej na wysokości piętra zaprojektowano fasadę szklaną , która zapewni z poziomu piętra atrakcyjny widok na cały zbiornik wodny.
Elewacje całego budynku osłonięte drewnianą pionowa żaluzją elewacyjną.
Od strony północno-wschodniej zlokalizowano zewnętrzne schody ewakuacyjne ukryte za pionową żaluzją elewacyjną budynku.
Na parterze zaprojektowano hol wejściowy, szatnię, sanitariaty dla klientów, biuro, kuchnię z zapleczem szatnię i pomieszczenie socjalne dla pracowników oraz pomieszczenie techniczne na urządzenia pomp ciepła.
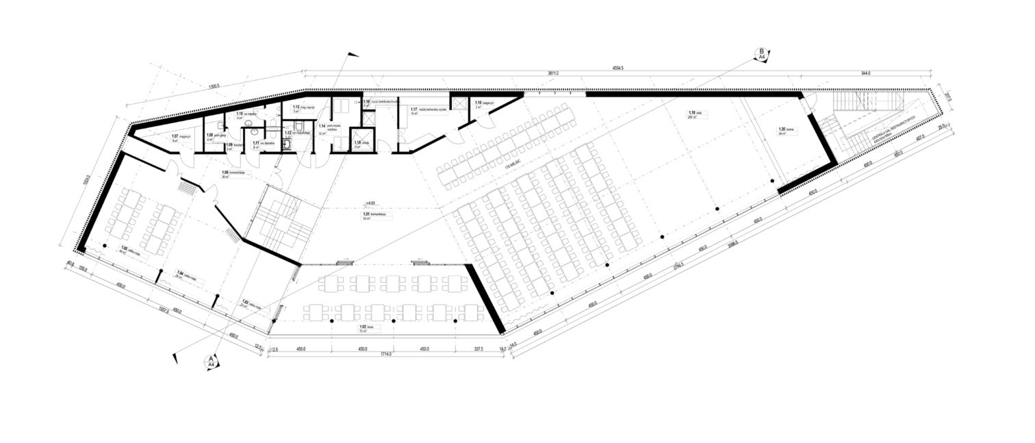
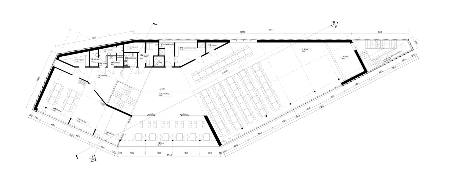
Na piętrze zaprojektowano dużą salę restauracyjną dla około 250 osób. Jedną małą salkę dla 20 osób i dwie salki dla 10 osób każda. Pomiędzy salkami przewidziano mobilne ścianki przesuwne co umożliwi połączenie salek w jedną większą przestrzeń.
Na piętrze usytuowano również zadaszony taras, zaplecze kuchni – rozdzielnie kelnerskie, magazyn napoi, pomieszczenie mycia wózków oraz sanitariaty i schowek porządkowy.
Budynek przystosowany dla osób niepełnosprawnych. Do budynku można wejść bezpośrednio z poziomu terenu, zaprojektowano windę pomiędzy parterem i piętrem i sanitariat dla osób niepełnosprawnych.




















