Sala Koncertowa / 2016
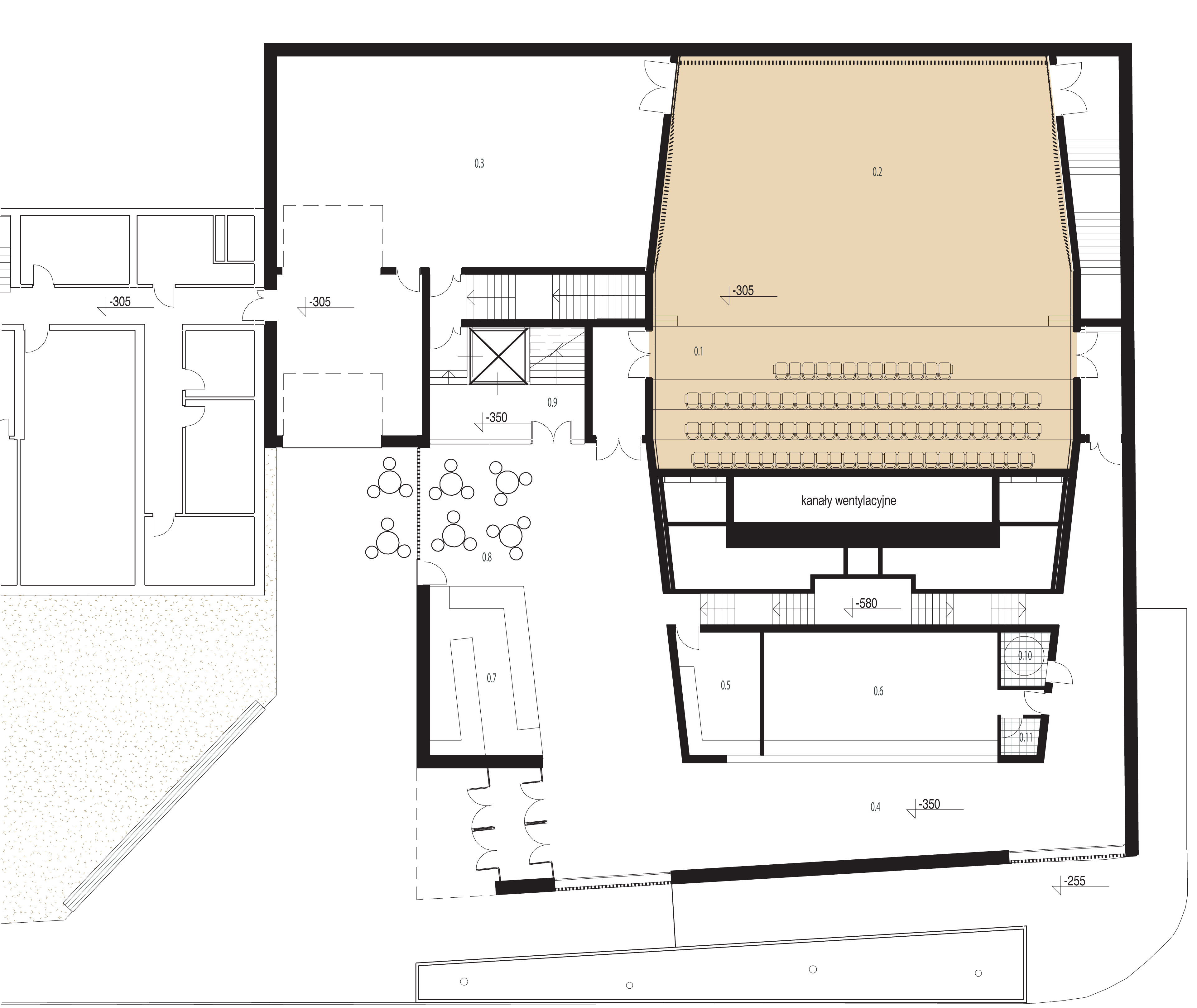
Posadowienie bryły sali koncertowej na jednokondygnacyjnym postumencie obejmującym prawie cały teren przeznaczony pod zabudowę tworzy dwie wzajemnie powiązane przestrzenie publiczne. Pierwsza ogólnodostępna na poziomie ulicy pełni rolę placu wejściowego, tarasu kawiarni, a w razie potrzeby zapewnia możliwość dostaw bezpośrednio na kulisy sceny. Druga przedłuża i powiększa dotychczasowy dziedziniec szkoły. Na co dzień użytkowana ma być przez uczniów, w przerwach spektakli przez widzów.
Zatopienie zasadniczej bryły sali w cokole optycznie obniża wysokość budynku, która wymuszona jest przez konieczność uzyskania odpowiednich czasów pogłosu. Tradycyjna architektura „Zdroju” to prawie wyłącznie dwu lub trzykondygnacyjne budynki z dachami spadzistymi mieszczącymi poddasza użytkowe. Kopertowy dach daje możliwość wykonania kondygnacji technicznej, a jednocześnie z poziomu ulicy jest prawie niewidoczny. Dach sali pozostaje w dobrej relacji zarówno z istniejącym budynkiem szkoły jak i ze znajdującym się po drugiej stronie ulicy szpitalem.
Stosunek szerokości sali do jej długości i wysokości, a także odchylenia ścian bocznych w pełni podyktowane były przez wymagania akustyczne.
Kulisy są łatwo dostępne z piwnicy i parteru szkoły. Na co dzień sala stanowi jedną z klas. Przez koncertem uczniowie rozgrzewają się i przygotowują w pomieszczeniach szkoły i szybko przechodzą na scenę nie mieszając się z widzami.
Dok wyładowczy jest na poziomie piwnicy szkoły, kulis i sceny i posiada rampę, dlatego ciężkie instrumenty i wyposażenie mogą być łatwo dostarczane na scenę. Po zamknięciu wrota doku całkowicie scalają się z okładziną ściany.
Łącznik zapewnia najkrótszą drogę z holu szkoły do kawiarni, na taras i na salę. Dzięki w pełni przeszklonym ścianom przechodząc przez łącznik odbiorca ma złudzenie przebywania na tarasie zewnętrznym. Łącznik powiększa też przestrzeń holu szkoły.
Wszystkie funkcje z których korzysta widz przed i po koncercie (szatnie, kasa, kawiarnia i sanitariaty) znajdują się przy strefie wejściowej i są „do ogarnięcia jednym spojrzeniem”. Z kawiarni można przejść na tarasy na parterze i na piętrze.
Sala zasilana jest z z dwóch stron na poziomie szatni, co przyspiesza opuszczanie budynku po spektaklu.
Elewacja wschodnia
Przekrój
Istnieje możliwość wchodzenia na scenę i opuszczania jej w dwóch kierunkach.
Materialność budynku wyraża się w okładzinie z desek z rodzimego drewna iglastego (modrzew, świerk ) bejcowanego na ciemny brąz i impregnowanego metodą ciśnieniową. Prawie nieoheblowane deski układane są w partii cokołowej pionowo tworząc rodzaj żaluzji na oknach.
Na bryle sali deski ułożone zostały z niewielkim odchyleniem od poziomu w pionowych pasach. Kąt odchylenia desek jest stały, ale jego kierunek w każdym pasie dobrano losowo. W zimie na górnej krawędzi desek może czasowo gromadzić się śnieg. Lampy typu „wallwasher”umieszczone u podstawy wydobywają strukturę drewna w nocy.
Drewna iglastego użyto również na powierzchni tarasu i na siedziskach otaczających donice na brzozy na tarasach.
Elewacja północna
Prosta i stosunkowo tania w realizacji powierzchnia ścian i tarasu jest niezwykle sensualna. Chropowate na ścianach i gładkie na powierzchniach do chodzenia i siedzenia deski zachowują się zupełnie inaczej w różnych warunkach atmosferycznych. Zimą przy stuknięciu wydają dźwięczny choć krótki odgłos i prawie śladowy zapach. Wczesną wiosną, a szczególnie późną jesienią nawierzchnia staje się wilgotna i śliska, stukot jest przytłumiony, a zapach ciężki i ziemisty. Rozgrzane słońcem drewno uwalnia zawarte w żywicy olejki eteryczne, które łączą się z zapachami lata.
sala
Okładzina wnętrza sali jest podobnie jak okładzina zewnętrzna „zbita z desek”. Tym razem jest to jasne drewno brzozowe pozbawione prawie sęków i starannie wyszlifowane. Bezbarwny impregnat powinien zachować naturalną jedwabistą powierzchnię drewna. Deski układane są w pionowych pasach, w części wymagającej odbicia dźwięku położone na płasko z pełnym przyleganiem bezpośrednio na betonowej ścianie. Obce pióro delikatnie podkreśla rysunek pionowych podziałów. W partiach ścian wymagających rozproszenia dźwięku deski są odchylane aż do pozycji prostopadłej do powierzchni ściany.
Elewacja zachodnia
Sufit i pas ściany w górnej partii wykonane są z desek bejcowanych w kolorze umbry. Aby zapewnić odpowiednie odbicia dźwięku w panelach sufitowych deski naklejane są na całej płaszczyźnie przylegania na grube podkłady ze sprasowanych płyt wiórowych o wysokiej gęstości.
Wszystkie deski mają przekrój 40x140mm.
Elewacja południowa
Nasadzenia drzew ograniczają się do dwóch pospolitych rodzimych gatunków sosny i brzozy.
Sosny posadzone przy krawędzi ulicy T. Kościuszki są kontynuacją szpaleru z ul. S. Żeromskiego.
Charakterystyczne pnie sosen o przyciętych w dolnej partii gałęziach i korze z szarymi przebarwieniami mają kontrastować w horyzontalnymi liniami elewacji.
Zasada kontrastu odnosi się też do wyboru drugiego gatunku – brzozy. Tym razem jest to kontrast kolorystyczny. Białe pnie pozostają w bezpośrednim styku z ciemno wybarwionymi deskami okładzin zewnętrznych. Brzoza jest gatunkiem mało wymagającym i może funkcjonować w donicach z płytkim układem korzeniowym. Oba gatunki łączą kolorystycznie szaro czarne przebarwienia kory.
Ponieważ drewno na elewacjach w naturalnym procesie starzenia będzie miejscami siniało, a z kolei szare płyty betonowe zaczną się patynować przerastając miejscami porostami całość powinna stworzyć naturalny, jednorodny koloryt budynku.
Mimo, że obecnie przy szkole znajduje się dużo zieleni, nie ma właściwie miejsca gdzie można wśród niej usiąść a relacje wnętrza z otoczeniem prawie nie występują. Taras z łącznikiem tworzą miejsce które odpowiada na tą potrzebę. W części wschodniej jest mocno eksponowany, ale posiada ciekawy wgląd na ogród przy szpitalu.

W części zachodniej jest kameralnym wnętrzem otoczonym bryłą sali, szkołą i modernistyczną Willą Witczaka. Przeciągnięcie nawierzchni tarasu przez podłogę łącznika i zastosowanie szklanych ścian zaciera granice pomiędzy wnętrzem i zewnętrzem.
Natomiast w partii cokołowej przylegającej do ulicy kontakt wnętrza i zewnętrza filtrowany jest przez drewniane listwy okładziny.
















