Centrum sportu i rekreacji / 2024
Idea
Na modularnej siatce o wymiarach 360×360 cm zaprojektowano białą kolumnadę o wysokości 24 metrów. Struktura kolumnady otaczającej cały budynek tworzy rodzaj „kosza”, do którego
„wrzucono” cztery bryły o zróżnicowanych gabarytach.
Dzięki zachowaniu nieprzekraczalnej linii zabudowy przy ulicy Witolda Pogorzelskiego przy wjeździe z ulicy Banacha i dostosowaniu wysokości obiektu do sąsiadującego Wydziału Geologii, udało się stworzyć symboliczną bramę na teren Uniwersytetu. Płac wejściowy do budynku, skierowany w stronę centrum kampusu, został wykształcony przez cofnięcie od linii zabudowy północno-wschodniego narożnika obiektu do linii wycofania narożnika Centrum Nowych Technologii. W ten sposób przy głównej osi urbanistycznej Kampusu Ochota prowadzącej w kierunku Parku Marii Skłodowskiej – Curie powstaje wyraźnie
zdefiniowane wnętrze urbanistyczne.
Opis koncepcji
W kontrze do zamkniętej formy Wydziału Geologii, dzięki dużym przeszkleniom projektowany budynek ukazuje zachodzące w nim aktywności. Ta transparentność staje się szczególnie widoczna
w godzinach wieczornych. Z ulicy Banacha można podziwiać wnętrze basenu, boiska umieszczone na dachu, salę judo oraz sale wielofunkcyjne wychodzące na sportową część aktywnego dachu.
W dalszym planie widać także ogród na dachu hali sportowej. Od strony wschodniej, na pierwszym poziomie, widoczna jest siłownia, a na najwyższym piętrze – biura CSiR. Z placu wejściowego można
obserwować ścianę wspinaczkową, a także główne ciągi komunikacyjne wewnątrz budynku, w tym schody i przeszklone windy w holu głównym. Hala sportowa przeszklona jest od północy od parkietu
znajdującego się na poziomie gruntu aż po górną część drewnianej konstrukcji dachu, nad którą zawieszony jest „baldachim zieleni” zacieniający ogród.
Od strony zachodniej widoczne jest wnętrze basenu i obie strefy aktywnego dachu. Główne przestrzenie centrum są zaprojektowane tak, by umożliwić interakcje, nie tylko z otoczeniem, ale i pomiędzy
sobą. Szczególnie spektakularne są widoki na ściankę wspinaczkową z różnych poziomów głównej klatki schodowej i wind, z holu górnego na basen, z basenu na salę sportów walki, z boisk dachowych
na sale fitness i do hali sportowej, a także z ogrodu na otwarte boiska.
Szczegółowe założenia koncepcji budynku
Nowe zapisy miejscowego planu zagospodarowania
przestrzennego MPZP, który uprawomocnił się w trakcie trwania konkursu, umożliwiają realizację wszystkich kluczowych funkcji budynku na czterech kondygnacjach nadziemnych. Ograniczenie robót ziemnych przyczyni się do obniżenia kosztów budowy i zapewni lepsze doświetlenie wnętrz światłem naturalnym, co z kolei zredukuje koszty eksploatacji i podniesie komfort użytkowania.
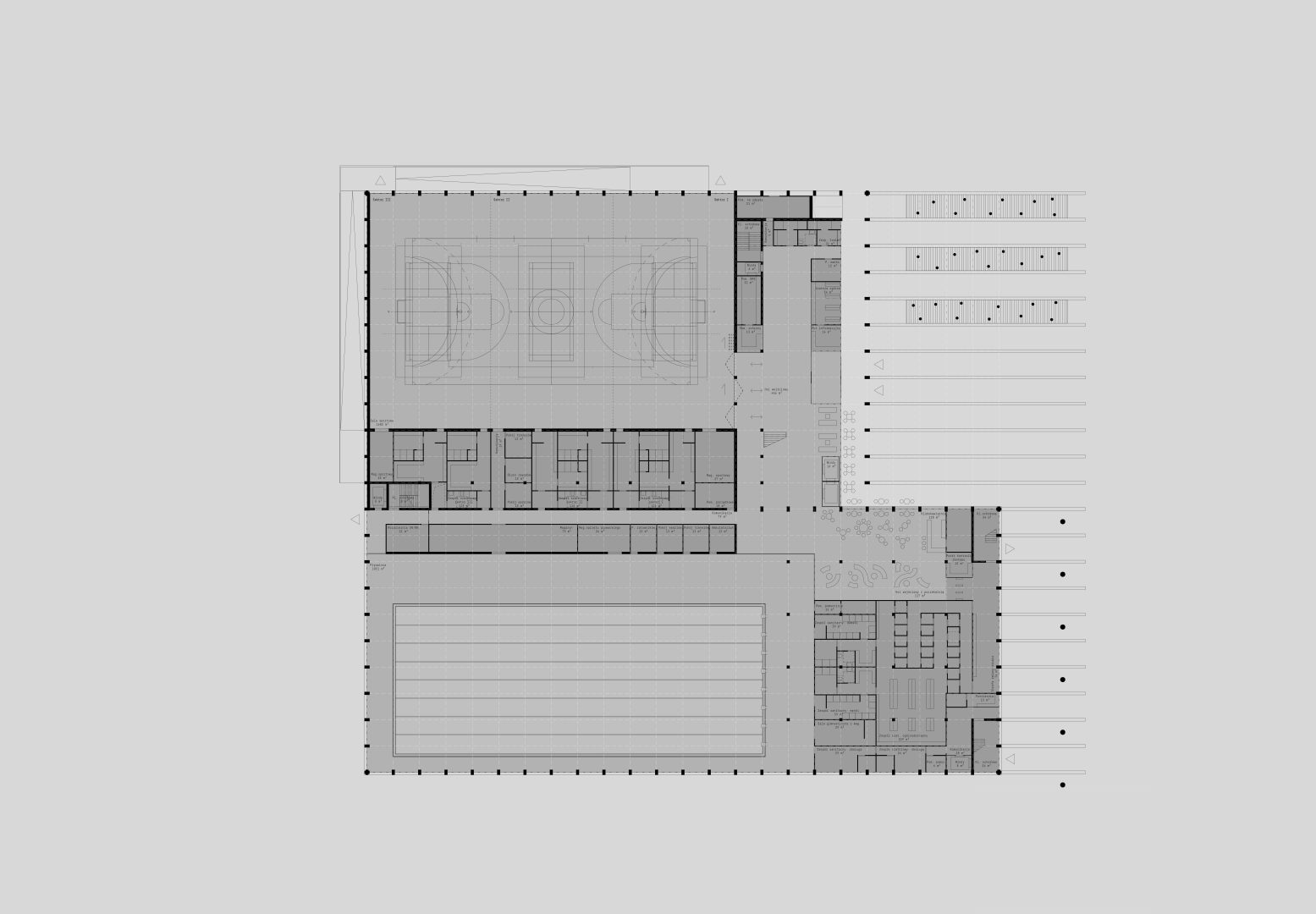
Każdy z czterech bloków „wrzuconych” do kosza kolumnady pełni inną zasadniczą funkcję, co na potrzeby koncepcji znalazło odzwierciedlenie w ich nazwach: „blok basenu”, „blok hali”, „blok holu” i „blok judo”. Bloki te oferują różnorodne przestrzenie i funkcje:
Blok basenu zawiera basen, widownię, pomieszczenia obsługowe i techniczne pod widownią na 360 miejsc, podziemną kondygnację z podbaseniem i częścią techniczną (w tym wymiennikownię i przyłącze wody), a na dachu zewnętrzne boiska sportowe odseparowane szklanymi ekranami akustycznymi od ulicy Banacha.
Blok hali mieści halę sportową z możliwością podziału na 3 mniejsze segmenty, widownię na 360 miejsc z szatniami umiejscowionymi pod nią, podziemny parking na 72 miejsca oraz ogród rekreacyjny na dachu.
Blok holu składa się z holu wejściowego z kontrolą dostępu, ogólnodostępnymi szatniami i sanitariatami; wysokiej części holu z windami i główną klatką schodową, oraz ścianki wspinaczkowej nad niską częścią holu.
Blok judo na parterze mieści hol wejściowy na basen z klubokawiarnią i pomieszczeniami przygotowawczymi, na piętrze znajdują się sale judo i siłownia z dedykowanymi szatniami, a na drugim piętrze salki wielofunkcyjne z dostępem do boisk zewnętrznych oraz szatnie i magazyn. Na ostatnim poziomie, dostępnym z holu głównego, ale też z niezależnego pionu komunikacyjnego, umiejscowione są pomieszczenia administracyjne.
Plaża basenu i płyta hali sportowej zostały zlokalizowane na poziomie terenu, co bardzo ułatwia dostęp do nich użytkownikom i obsłudze obiektu. Pozostałe funkcje zlokalizowano na wyższych kondygnacjach.
Poziome ciągi komunikacyjne zasilane są z klatki schodowej i wind umiejscowionych w wielokondygnacyjnej części holu. Główny ciąg komunikacyjny na poziomie pierwszego piętra umożliwia łatwe przemieszczanie się między różnymi częściami obiektu, na osi wschód – zachód.
Od zachodu umożliwia wejście na widownie basenu i hali, od wschodu prowadzi do sali judo i siłowni. Na kolejnym poziomie w połowie wysokości obiektu znajduje się wyjście na płytę sportową
zlokalizowaną na dachu basenu. W bloku południowo- wschodnim na tym poziomie zaprojektowane zostały salki wielofunkcyjne. Aktywny dach zaprojektowany został nad dwoma dużymi halami. Największe rozpiętości konstrukcyjne w budynku nie są dodatkowo dociążane konstrukcją wyższych pięter, a jedynie obciążeniami użytkowymi. Z placu wejściowego na dach aktywny prowadzą zewnętrze schody terenowe tworzące „kanion” pomiędzy bryłami północnymi i rampę – pochylnię pomiędzy bryłami zachodnimi.
Rozwiązania architektoniczne
Budynki w bezpośrednim sąsiedztwie projektowanego Centrum Sportu i Rekreacji, mimo różnej powłoki zewnętrznej wynikającej z czasu, w którym powstawały i zastosowanych do ich budowy technologii, mają podstawową wspólną cechę. Wszystkie są obiektami kilkukondygnacyjnymi z pomieszczeniami o podobnej wysokości na każdym piętrze. Budynki naukowo- dydaktyczne muszą zapewnić użytkownikom duży poziom intymności sprzyjającej koncentracji i redukować do minimum czynniki rozpraszające. Zastosowanie w nich dużych powierzchni przeszklonych jest raczej wynikiem mody, a nie potrzeby, szczególnie, że może powodować przegrzewanie się wnętrz. W przeciwieństwie do sąsiednich budynków Centrum oferuje przestrzenie o zróżnicowanej powierzchni i funkcji: od dużych takich jak basen i hala sportowa, przez średnie, jak sala judo i sale wielofunkcyjne po małe pokoje biurowe. Obiekt odróżnia się od otaczającej zabudowy nie tylko wielkością przestrzeni wewnętrznych, ale przede wszystkim rodzajem aktywności, które się w nim odbywają, dlatego projekt zakłada otwartość i interakcje z otoczeniem.
Zamiast izolować użytkowników projekt stawia na transparentność i związanie z przestrzenią zewnętrzną. Ważniejsze funkcje obiektu widoczne są z ulic, wewnętrznych dróg i placów, a także z sąsiednich budynków, co sprzyja integracji z otoczeniem. Przegrody zewnętrzne mają służyć jako bariery termiczne i akustyczne, nie zaś wizualne, umożliwiając tym samym obserwację dynamicznych i atrakcyjnych aktywności zachodzących wewnątrz. Dzięki temu budynek staje się zachętą do aktywności fizycznej i interakcji społecznej.
Od strony ulicy Banacha pokazuje aż pięć różnych aktywności: basen z widownią, salkę sportów walki, salkę fitness, boiska zewnętrzne na dachu i ogród rekreacyjny, co podkreśla jego wielofunkcyjny charakter. Z kolei z wnętrza kampusu widoczne są osoby korzystające ze ścianki wspinaczkowej, siłowni i hali sportowej. Spójność wizualną całego założenia zapewnia biała kolumnada, która będąc częściowo ażurowa, a częściowo wypełniona szkłem lub ciemną okładziną, łączy różne wielkości i funkcje wnętrz w jedną całość. Jest to element porządkujący i spajający różnorodne części budynku i pozwalający zachować jego jednolity charakter architektoniczny.
Ogród światła
Ogród światła jest stworzony z kilku wzajemnie przenikających się grup roślin, które wspólnie tworzą naturalną kompozycję. Kępy najwyższe (wys. do 2m) tworzą szczepione na różnych
wysokościach brzozy brodawkowate w odmianie Youngii, której pędy rosnąc fontannowo pokładają się na ziemi łącząc się z niskimi krzewami z gatunków np. brzoza karłowata i sosna górska.
Główną częścią kompozycji jest wybór traw i bylin tworzących łąkę kwietną, która opływa podesty, leżaki i hamaki do wypoczynku w promieniach słońca. Grupę najniższą tworzą rośliny okrywowe
zadarniające, głównie rozchodniki o charakterze roślinności ekstensywnej. Te początkowo przy obsadzie łąki kwietnej tworzą zwartą kępę, by stopniowo rozrzedzać nasadzenie kosztem
nawierzchni utwardzonych, pomiędzy którymi wyrastają pojedyncze egzemplarze roślin. Całość kompozycji ma tworzyć wrażenie naturalności i nadawać charakter swobodny, zachęcający do wypoczynku.
Ogród cienia
W ogrodzie cienia na kolumnadzie zewnętrznej i dodatkowych drewnianych słupach osadzony zostanie ruszt z drewna klejonego. Z odsłoniętej warstwy wegetatywnej wokół słupów wyrastać będą pnącza, które następnie rozrastać mają się po ruszcie. Proponuje się również posadzenie dwóch szczepionych na wysokości 3,5 m brzóz. Z czasem ukształtuje się nad tarasem zielony baldachim. Na część ogrodu cienia wybrano kompozycję roślin pnących o silnym wzroście i wysokiej mrozoodporności. Rośliny te mają za zadanie stworzenie zielonego zadaszenia dającego mieniące się grą świateł spomiędzy liści o różnych
fakturach i kształtach cienie. Dobrym wyborem mogą być: Fallopia baldschuanica (Rdest Auberta), Vitis riparia (Winorośl pachnąca), Celastrus orbiculatus (Dławisz okrągłolistny) oraz Betula pendula ‚Youngii’ (Brzoza brodawkowata) Brzoza jest motywem powtarzalnym we wszystkich kompozycjach zieleni w projekcie – zarówno przed budynkiem jak i w kompozycjach ogrodu na dachu. Jako roślina uniwersalna pojawia się w odmianie płaczącej szczepionej na wysokości podpór pod pnącza. W ogrodzie cienia tworzy niejako dodatkowe filary podtrzymujące „zielony dach”, a jej gałązki mają przeplatać się i zwisać wraz z pnączami.
Przykładowe rośliny do ogrodu światła podzielono na trzy grupy:
Grupa I – krzewy: nisko szczepiona Betula pendula Youngii (Brzoza brodawkowata Youngii), Betula nana (Brzoza karłowata), karłowata Pinus mugo (Sosna górska);
Grupa II – trawy i bylin wyższe: Achillea millefolium (Krwawnik pospolity w odmianach), Schizachyrium scoparium (Schizachyrium miotlaste), Deschampsia cespitosa (Śmiałek darniowy), Sedum spectabile
(rozchodnik okazały), Rudbekia occidentalis ‚Green Wizard’ (Rudbekia zachodnia ‚Green Wizard’), Lychnis coronaria (Firletka kwiecista);
Grupa III – byliny zadarniające: Phlox subbulata (Płomyk szydlasty), Sedum spurium (rozchodnik – odmiany na dach ekstensywny), Tak uformowany ogród będzie relatywnie łatwy do utrzymania, a ponadto stymulował będzie wszystkie zmysły wzrok, węch, słuch a nawet „oczy skóry”
Koncepcja zagospodarowania terenu
Projekt zagospodarowania terenu wokół Centrum Sportu i Rekreacji zdecydowanie podkreśla rolę ulicy Witolda Pogorzelskiego jako głównej osi urbanistycznej kampusu. W zgodzie z zaleceniami z pierwotnej wersji miejscowego planu zagospodarowania przestrzennego (MPZP), proponuje się wzmocnienie tej osi poprzez szpalery drzew. Do głównej osi przylegają „zatoki” zieleni i półotwarte przestrzenie urbanistyczne, takie jak place przed budynkiem Geologii i Centrum Nowych Technologii. Plac wejściowy przed projektowanym budynkiem, poprzez wykorzystanie podobnej nawierzchni i stopień wycofania od
ulicy, nawiązuje do tych przestrzeni. Oferta placu zostaje wzbogacona o podcień przed wejściem, służący jako ogródek letni klubokawiarni, oraz „gaj brzozowy”.
W projekcie przewidziano likwidację wolnostojącej portierni przy głównym wejściu i przeniesienie jej funkcji do holu wejściowego, z bezpośrednim dostępem do niezależnego pionu komunikacyjnego prowadzącego do administracji. Rekomenduje się także przeniesienie stacji transformatorowej znajdującej się przy wjeździe, a także wzmocnienie wizualne „Bramy do kampusu” poprzez umieszczenie napisu z czterometrowych przestrzennych liter.
Gaj brzozowy
W północnej części placu wejściowego zaprojektowano w trzech pasach pomosty drewniane, z których wyrastać będą pnie brzozy białej ‚White Light’ nawiązujące do bieli kolumnady. Gęsto posadzone drzewa będą miały tendencję do wykształcania smukłych pni z niewielką ilością gałęzi w dolnych partiach. Pomosty służyć mają do oczekiwania przed wejściem do centrum, a jednocześnie zabezpieczą pasy ziemi
niezbędne do prawidłowego wzrostu drzew przed przerastaniem chwastami.






















